Programmation et réalisation d’infrastructures d'accueil du public à Chantilly (Hippodrome / Château)
Chantilly / France / Taillle XX
Domaine de Chantilly / Fondation pour la sauvegarde et le développement du Domaine de Chantilly / G.I.P. Initiative pour un développement durable de Chantilly
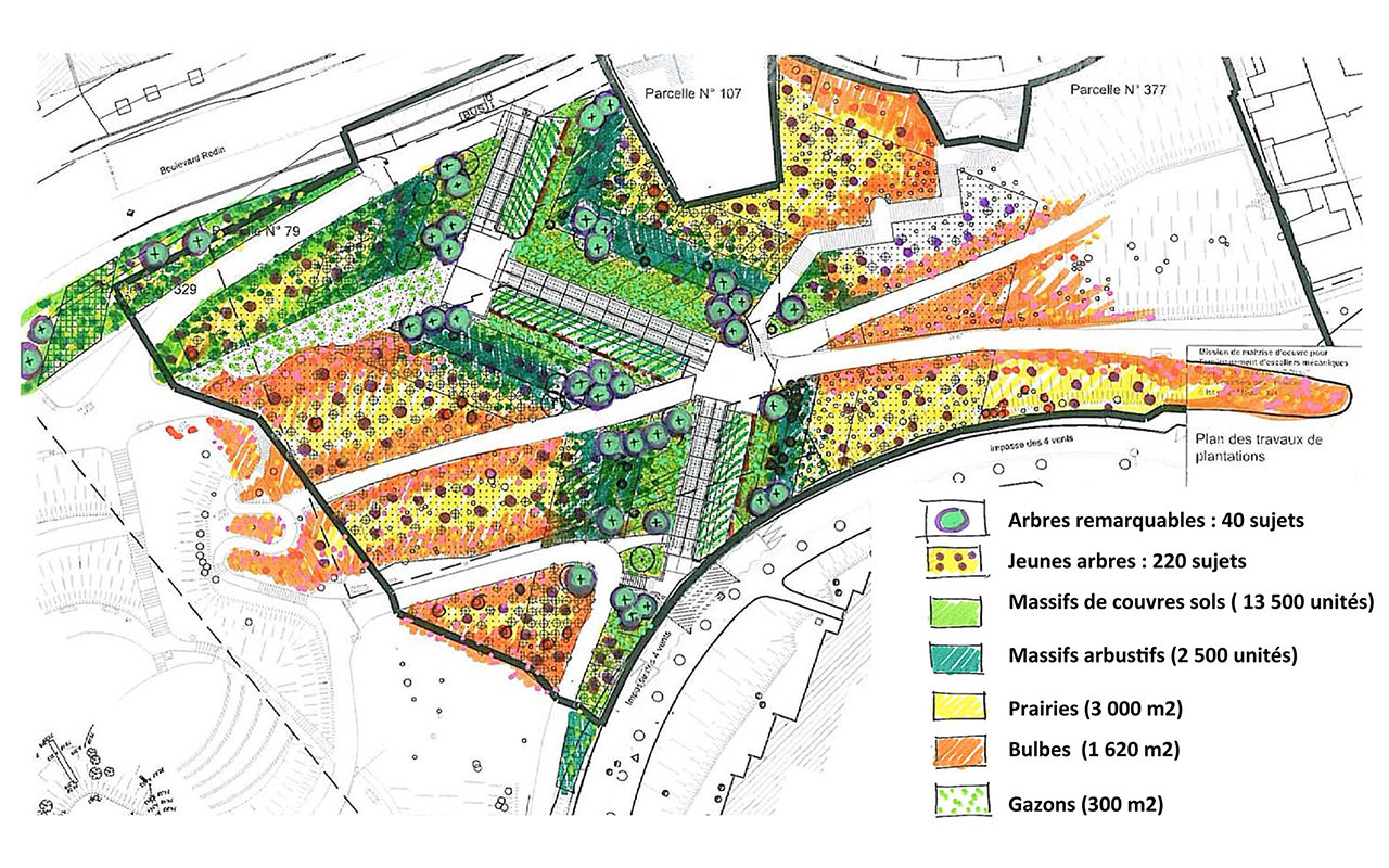
Réaménagement de l’hippodrome et des abords du Château de Chantilly, dans un projet à vocation esthétique, environnementale, écologique et fonctionnelle pour améliorer l’accueil des usagers (175 hectares). Création de parkings paysagers et voies de desserte, mise en valeur des axes historiques et perspectives, recomposition des lisières forestières et régénération du massif forestier.


